Jede Anlage, ob im Haus oder im Garten,
wird ganz nach Ihren Wünschen in
der hauseigenen Produktion hergestellt.
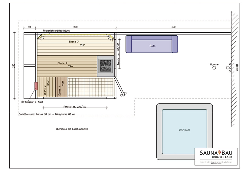
An diesem großen Saunahaus wurde hochwertiges Ipé Holz verbaut: die komplette Außenverkleidung mit Rhombusleisten, für den Boden (innen und außen) Landhausdielen. Die Dachkonstruktion besteht aus Ipé Konstruktionsbalken mit eingelegten weißen Kunststoffplatten inkl. einer LED Beleuchtung.

Die große Saunakabine wird von einem 12 kW Klimaofen beheizt, zusätzlich ausgestattet mit einem in der Wand eingelassenen IR Strahler und Rückenlehnenbeleuchtung.

Ergänzt wird die Anlage mit einem komfortablen, großzügigen Ruhe- und Nassbereich mit Dusche und Whirlpool.