Jede Anlage, ob im Haus oder im Garten,
wird ganz nach Ihren Wünschen in
der hauseigenen Produktion hergestellt.
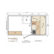
Trotz Hanglage wurde eine Lösung für ein geräumiges Saunahaus mit Vorraum gefunden. Der Ruhebereich steht auf verzinkten Stahlstützen die wiederum auf Punktfundamenten verankert sind. Standardmäßig der verzinkte, isolierte Bodenrahmen. Das Flachdach ist mit einer Folie ausgestattet, die das Begrünen der Dachfläche erlaubt, sowie einer umlaufenden Alublende. Die Saunakabine verfügt über ein Oberlicht, der Ruheraum über ein bodenhohes Fenster zum Garten. Dusche und eine große Bank finden sich im Ruheraum. Grau behandelte Lärchen-Rhombusleisten verkleiden das Saunahaus.